Casa

Description

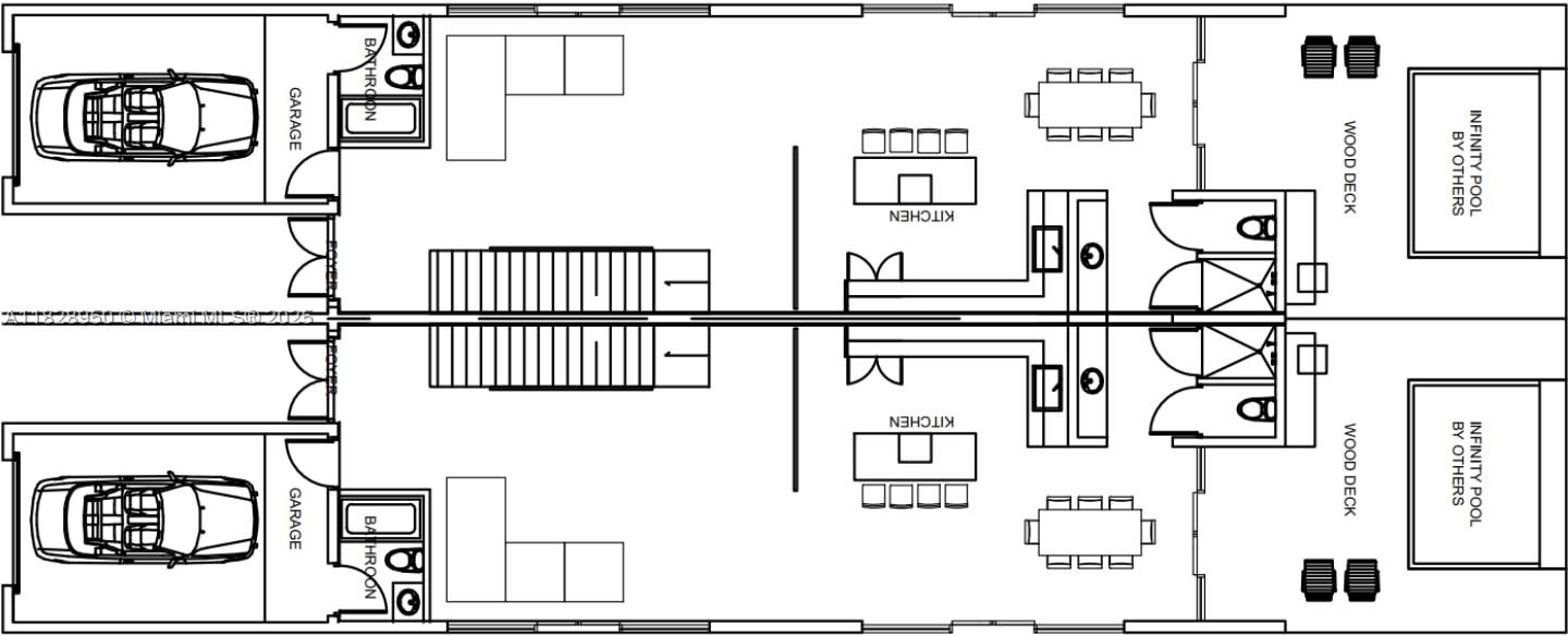
Investor special! Demolition work will be completed--full set of plans included. Located in a rapidly growing area with high upside potential. Don't miss this great opportunity to build and invest. Call listing office for more details.

Details

  • $ 375.000,00
  • $ 2.637,00
  • 1515.00 ㎡
  • 1515.00 ㎡
  • 2
  • 2
  • 1
  • Residencial
  • 1925

Features

Other Related Properties

Residential / Home Casa
  • For sale

Weston

  • 4 Bedrooms
  • 2 Bathrooms
  • 2 Garages
  • 1,978
$ 718.000,00
Residential / Condo Casa de Condomínio
  • For sale

Pembroke Pines

  • 3 Bedrooms
  • 2 Bathrooms
  • 1,361
$ 460.000,00
Residential / Condo Casa de Condomínio
  • For sale

Davie

  • 3 Bedrooms
  • 2 Bathrooms
  • 1 Garage
  • 1,648
$ 535.000,00
Residential / Condo Casa de Condomínio
  • For sale

Aventura

  • 3 Bedrooms
  • 2 Bathrooms
  • 1 Garage
  • 2,360
$ 1.590.000,00

Looking for a dream home?

We can help you realize your dream of a new home.